
Murowany dom 35 m² – całoroczny
Podkarpacie | Sanok i okolice
Realizujemy budowę murowanego domu całorocznego o powierzchni zabudowy 35 m².
To nie jest domek letniskowy ani ROD, tylko pełnoprawny dom.
Najważniejsze informacje:
-
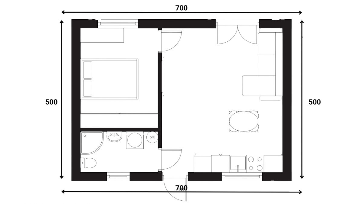
35 m² powierzchni zabudowy
-
cena: 135 000 zł brutto
-
technologia: murowana
-
etap: stan surowy otwarty
-
jedyny wariant ze ścianami działowymi
Stały układ:
-
salon z kuchnią
-
sypialnia
-
łazienka
Dla kogo:
- dla osób, które rozważają własny dom zamiast kawalerki
- jako dom całoroczny, nie rekreacyjny
Obszar realizacji:
Podkarpacie: Sanok, Lesko, Krosno, Ustrzyki Górne, Rzeszów i okolice
Po kontakcie:
-
przekazujemy szczegóły zakresu prac
-
informacje organizacyjne
-
odpowiadamy na pytania dotyczące budowy
???? Kontakt przez formularz lub wiadomość.
* Cena orientacyjna. Zakres prac: stan surowy otwarty.
Powołaj się na ogłoszenie z jaslo24.pl
Wyślij wiadomość:
Ogłoszenia użytkownika:
Zobacz inne ogłoszenia z kategorii:
Budowa domu





